疾控預防和控制(CDC)是一個與人們生活息息相關的部門,其建設水平的高低反應了一個對社會公共衛生安全的保障程度。自全球性的SARS疫情和禽流感發生后,加大了在這方面建設的力度,并投人大量的資金對各省、市、縣的CDC進行改建或新建。
從CDC的服務對象來分主要為二大類:一類是服務于公共衛生,主要涉及到食品、日用品等要求的一些檢驗科目,如:微生物學檢驗、衛生學檢驗等。另一類是為了應付突發事件的科目,如:突發的疫情、流行性等。省、市、縣的各級CDC所需的檢測要求和內容是不一樣的,但總體來說內容比較繁多,主要包括:預防和控制、突發公共衛生事件應急處置、疫情及健康相關因素信息管理、健康危害因素監測與控制、實驗室檢測分析與評價、健康教育與健康、技術指導與應用研究等職責。其大檢驗的類別數量為25項、內容數量為79項、項目數量為225項,具體測試的項目主要有:寄生蟲、性病和艾滋病、鼠疫、理化分析、衛生微生物、病原微生物、毒理實驗、病原微生物、急性傳染病、病媒、蟲媒、血吸蟲等。正因為CDC擔負著以上的檢測任務,所以其工作的程序安排,包含著很大部分的不確定性,除了在管理上采取相應的措施和制度外,實驗室的布局和硬件的設施也是尤為重要的環節,在某種程度上說是至關重要的。
近年來,隨著人們生活水平的不斷提高,加強了這個領域的投人和建設,特別是SARS疫情的爆發和禽流感的發生,使人們看到CDC在保障人民健康中的重要性,從而了各地CDC的建設。就 目 前 而言,還沒有一個完整和系統的關于CDC的建設規范,而是套用和引用一些相關領域的規范,目前使用的規范和準則主要有:《微生物和生物醫學生物安全通用準則》WS233-2002,《生物安全實驗室建筑技術規范》GB50346-2004,《實驗室生物安全通用要求》GB19489-2004,《科學實驗建筑設計規范)JG J91-93,《采暖、通風、空調、凈化設備術語》GB/T16803一1997,《潔凈廠房設計規范》GB50073-2001,《潔凈室施工及驗收規范》JGJ71-1990。還有一些通知和參考條例,如:衛生部辦公廳、發改委聯合頒布的:衛辦疾控發(2004)108號文、農業部第302號公告關于獸醫實驗室生物安全操作技術管理規范等。
目前 CDC存在的不足之處主要有:選址不合理。有的設置在居民密集區和較繁華地區;與周圍建筑物的間距不夠。存在這樣的局面除了原來選址時就沒有考慮到外,還由于城市建設不斷發展,原來存在的空間被占用。實驗 室 分 區不清,布局設置不合理。各個科室的部分功能重復設置,這樣既增加了儀器的配置也增加實驗人員的數量和增加實驗面積,同時也會引起一些管理不便。按照目前的使用情況來看,由于每個科室都設置了相對較完備的實驗設施,一個科目的內容基本上能在一個科室里完成,這樣就會使一些具有相同和類使得實驗儀器重復設置,而且對于這些項目的測試,由于每個操作人員的使用和操作習慣,也有可能引起數據的不統一等。因此一個完善的布局不僅僅是一個硬件問題,更牽涉到管理理念和方法的轉變,如果有一個好的布局,也為管理水平的提升打下良好的基礎。所以,我們在改造和新建CDC時應該掌握這樣一個原則:盡量利用有限的資金和人力資源,完善和發展各個科目的實驗環境,在具體實施過程中應注重經濟性、實用性和發展性的綜合考慮。
4.1 選址
根據2004年4月關于預防控制基本設施建設標準的討論稿的精神,預防控制的房屋建設,包括業務用房、實驗用房、行政用房、保障用房和公共配套設施用房等部分。而其他公共配套設施,系指采暖熱源、洗衣房、固體廢棄物處置、廢棄放射源存放、托幼院、職工食堂等,應該盡量一拖社會化服務來解決
預防控制的選址應符合當地城市的總體規劃和布局要求;并宜符合下列要求:利用城市基礎設施;地形比較規整、交通方便;不宜與市場、學校、幼兒園、公共娛樂場所毗鄰;應該避開化學、生物、噪聲、振動、強電磁場等污染源及易燃易爆場所;此外,總平面布置應充分利用地形地貌,科學布置各類建筑,正確處理功能分區之間的相互關系,合理組織人流、物流。
目前很多地方的CDC由于歷史緣故,建設在人口比較密集的地方,或原來建在離市區較遠的地方,但隨著城市化規模的擴大,也逐漸融人其中。因此在新的建設中選址方案一定要請相關部門進行分析、比較,還要根據城市的整體發展規劃,并結合危急狀況下的應急預案,找出選址位置。
4.2 實驗室布局
4.2.1 應該根據CDC日常工作的特點,如實驗項目范圍較廣、需要應付突發事件、今后發展功能擴展的需要等原則進行規劃和設計。
按照相關規范和要求,實驗區域和辦公區域一定要分區。如為了節省占地面積,需將辦公和實驗都建在一幢樓中時,需要做好分區劃分。分區一般有兩種形式:一種是按照平面分,也就是按樓層分,即將辦公區域設在較低的樓層,實驗區域布置在上面的層次。但這樣的布置要注意幾個問題:雖然在底層布置了辦公區域,但需要留有一定的區域留作收樣和發實驗報告用。另一種就是垂直分,即以建筑物中部樓梯作為分界線,樓梯的一側可作為實驗區域,另一側作為辦公區域,中間用門將兩個區域分開。如果是兩邊設樓梯的形式,那這兩個區域可以完全分開。
物流和人流的路徑應分開,特別是有凈化要求的區域和有較嚴重污染物產出的區域。同時將物流分為干凈和污染物分別走的通道,可以避免交叉污染。一般高于三層的建筑物,建議設置電梯比較好。
4.2.2 A+B模式
目前CDC的實驗室布局通常按照科室的編制進行配置,每個科室的實驗室配置都相對完善,這樣的布局可以使一個科室所轄的實驗項目均可在本科室的實驗室獨立完成。從實際使用效果來看,這種模式的布局在規模比較小的CDC中較合適,因其科室配置較少,需要檢測的項目壞多,但對于省、市等的大型的CDC建設就有其不足,如果按照科室設置進行實驗室的布局,可能會存在以下的不妥:造成 實 際 使用面積和工程費用的增加。對于一些有相同或類同使用功能的實驗室,如果各個科室都設置,必然使需要的面積增加較多。特別是一些有凈化要求的實驗室,除了主實驗室外,還需要有輔助的實驗房間與之配套,多個獨立的主實驗室就要浪費比較多的輔助實驗空間。此外,這些房間對環境要求較高,需要空調系統進行維持,如果都是在各個科室(區域)進行獨立設置,就需要設多個空調機房和較長的風管,造成工程費用的增加。
實驗儀器增加,資源配置不合理。實驗室數量的增加,配置的實驗儀器也要增加,人員的編制也有可能增加。同時由于各個科室的實驗任務不一定每時每刻都是滿負荷的,可能會造成部分儀器的閑置率增加,造成資源的浪費。不利 于 管 理和教學:一些有凈化要求的房間和有負壓要求的實驗室,其實驗環境對實驗的的過程和結果都有較大的影響,如果這些實驗室都分到各個科室分散管理,沒有集中管理的好。特別是一些兼有培訓任務的CDC,如果沒有一定的教學實驗室,而直接將教學在作實驗的實驗室進行,對實驗數據會造成一定的影響。
不利于今后發展:CDC是一個隨著社會的發展而不斷發展的機構。隨著社會的進步,會有越來越多的測試項目增加,有的能利用原來的實驗設施,有的要新增,如果不留有一定的實驗空間,今后發展就會存在一定的難度。
針對目前CDC布置的不足,筆者提出了A+B實驗室的設計理念,其具體含義如下:
A: 各科室需要自備的和具有特殊用途的實驗室。這部分實驗室的配置應根據當地所需要的測試項目進行合理規劃予以設置。
B: 具有公共(相同使用特性)性的實驗室。如:基礎科目的實驗室和標準實驗室。標準實驗室主要包括各類生物安全實驗室、有凈化要求的實驗室和公共(開放)實驗室。要說明的是公共(開放)實驗室是指沒有特殊環境要求的,但具有相同或類似儀器配置的實驗室,所謂開放性是提供對本CDC的部門的各個科室共同使用,并可兼顧一些教學要求,但不是對外的實驗室。
這種布局具有以下優點:
對實驗空間進行有效利用。每個CDC的可以根據自己業務范圍,對每個科室實驗室的面積、間數進行合理配置,除了對各個科室有特殊要求的實驗室按科室布局外,對普遍使用和類同的實驗室集中布置,以此減少這些實驗室的間數和面積,以大限度利用好有限的空間。
便于管理和資源合理應用。可以將實驗器材特別是貴重儀器進行相對集中的布置,對實驗人員進行合理的分配,大限度提高具有較大能耗實驗室的利用率。特別是將有一些特殊要求的實驗室集中,便于管理,提高實驗數據的準確率。留有 發 展 空間,應付突發事件,并為以后實驗項目范圍的擴大打下基礎。由于設立了公共使用的實驗室,進行統一管理,可以提高這些實驗室的利用率,也相應節省了實驗室的間數和面積,這樣可以空出一部分的預留空間,為今后實驗科目的增加打下基礎。
應付突發事件。由于CDC的特殊性,除了要完成日常計劃的科目測試外,很大程度還要積極對當地的突發事件進行響應。但由于這些事件是不可預測,其檢驗科目和數量也隨不同的事件而變化,設立了相關的公共實驗室,可以在突發事件發生時,很方便地對整個實驗系統進行調控。
集中管理 ,提高管理水平。由于進行了集中管理,特別是對有負壓要求和凈化要求等對實驗環境有較高要求的實驗室進行統一的專人管理,可以減少實驗環境可能發生缺陷的概率。同時,公共實驗室的建立,便于SOP的編制和實施,提高實驗數據的準確率。
節省能耗和工程費用。一般對環境要求高的實驗室使用時,都將增加能源的消耗,也會增加建設的工程費用。如:需設立空調機房,安裝風管,增加自控系統等。將這些實驗室集中布置,能減少空調機的臺數,減少風管的尺寸和長度,減少自控系統地投人等,從而也大大降低這些系統的日常運行費用。
4.2.3 公共設施部分
一個完備的CDC實驗室還需要包括一套完整的公共設施部分,主要有以下幾個方面:
樣品的收樣和貯存:樣品分為一般樣品和特殊樣品。收取樣品是整個實驗的一個重要環節,如果這個環節出現差錯,整個實驗數據都將不正確和不完整。為了避免實驗數據出現誤差,應實現一個口子進出的原則,即設立一個收樣室。但貯存樣品就要看實際情況,原則是使同類樣品盡量放在一個房間(區域),通過設置不同的櫥柜、標簽以示分別。
洗衣:洗衣也是一個實驗數據準確性的安全保障,特別是在萬級、千級和無菌操作室,如果所穿的實驗服裝沒有達到相關要求,會影響實驗的環境,使之很難達到萬級和無菌的要求,影響到實驗數據的準確性。解決這個問題就是需要在輔助試驗區設立專用洗衣房。一般實驗室實驗服的洗衣環境沒有凈化要求,但為了便于管理,也可將它們合在一個區域,對于有凈化要求的實驗環境,特別是萬級和無菌區域使用的實驗服應該在十萬級凈化區域里洗滌,并在層流罩下進行整衣,然后包裹好后送人柜進行。由于這個洗衣房有凈化要求,所需面積較小,且使用時間也不是很長,建議采用小型立式空調凈化機組,設立在其旁邊,可以節省很多工程費用。
實驗區域的實驗儀器的洗滌和污物回收:在每一個相對獨立的實驗空間設置洗滌、準備的房間,可以對數量較多的普通的的實驗器材進行統一的洗滌和準備,以便于管理。每個實驗室(區)還應設置一定數量的密閉回收箱(桶),用不同顏色和標簽對回收物進行分類:危險丟棄物,一般廢棄物和可回收利用物等,并在標簽上注明相應的說明,便于工作人員根據類別,對所回收的貨物進行不同的處理。這樣做的好處可保證危險品得到很好的處理,有利更好地管理。采用密閉的箱(桶)也可避免在運輸過程中,其中的回收物對環境可能造成的污染。
4.3 無菌室和生物安全實驗室
本節將對無菌室、P2生物安全實驗室(簡稱P2實驗室),P3生物安全實驗室(簡稱P3實驗室)等的布置進行探討。
4.3.1 無菌室
無菌室環境的凈化要求需要一萬級或層流罩100級區已經為大家公認,但在CDC無菌室的設計和使用來看,人、物流的進出方式,卻差別很大,有的布置是人直接進去,有的只是經過一間氣閘就進人。
如果依據潔凈廠房的設計規范,一萬級的人流進人的程序:換鞋~更外衣~洗手一更無菌衣~氣閘~一萬級凈化區,如果能這樣做固然好,但對在實驗室這樣做可能有點繁瑣,其理由如下:相對生產來說,凈化區域實驗室的操作人員很少,可以通過在緩沖區停留一段時間的方法(自凈)達到要求,同時在一萬級實驗室中,相關設施和人員的動作較少,可使其中的空氣的流向不至于遭受到很大的破壞,所以建議采用如下的程序:換鞋、更外衣~穿無菌衣~一萬級凈化區。為了在實驗過程中能達到百級和千級要求,在實際布局中有兩個方案:一為設置超凈工作臺。其好處是投資較小,運行費用也低,安裝方便等,但不足之處就是操作面小,不是很方便,如果有大件物品的采樣就不太適合。還有一種就是設置百級層流,層流罩的面積好比實驗操作區域要大20%一30%,以保證實驗區域能達到相對高的凈化要求,這樣的設置較適合對大宗樣品的取樣和檢測,但其運行成本較高,一次性資金投人也較多,而且對層高有一定的要求。無論采用以上何種形式,這類實驗室的投資、運行費用和維持費用都是較高的,因此一個CDC需要設置幾個這樣的的無菌間需要進行綜合考慮,可以預先列一個工作計劃表和操作時間,算出所需的房間數,然后根據當地突發事件的概率,再乘上1.2-1.5的系數,即可得出所需的間數。
圖1是一個無菌室的布局圖。人員經過更衣、穿無菌衣后通過一萬級走道進人無菌室。所需的實驗物品經過準備間(十萬級),再通過一萬級走道進人相應的無菌室。旁邊的塔養室是為微生物培養用,按十萬級設計,也可沒有凈化要求,主要是根據實驗性質和所用培養設施決定。這些有凈化要求的房間集中設置,旁邊的空調機房為其提供凈化空氣的通風。由于采用近距離集中設置,節省了設備和風管的投資。此外,CDC的實驗性質決定了無菌室同時使用系數很低,所以在設計空調系統時采用了變風量調節系統,可以根據使用要求,只開啟其中幾間無菌室,大大降低了運行費用。

4.3. 2 P2實驗室
按照《微生物和生物醫學生物安全通用準則》WS233-2002中的相關要求,P2實驗室對空調凈化物特別的要求,其實驗僅需放置在生物安全柜中進行就可以。但上一般是對P2實驗室采取負壓環境,筆者通過對相關規范的理解,認為P2實驗室負壓有其必要性:因為在特殊情況下某些物質有可能會發生變異,使其危險性變大;或者是對未知性質樣品的檢驗等。這樣在相對負壓實驗的環境操作中就會相對安全,萬一有可能出現意外,也不至于泄漏,造成對環境的影響。從一次性投資來看,采取負壓密閉的狀態下進行實驗,將比僅進行舒適性空調的投資相差在1/3到1/2之間,但由于有較多的便利和相對多的安全性,因此本文建議在P2實驗室建立一個負壓環境還是值得的。
為了保持實驗環境的負壓,在人、物進人時都應該設置氣閘或傳遞柜,人員進出需要更衣,在這里的更衣主要是為了防止可能被污染的衣服傳出實驗區域,在物流出口設置專用的污物通道,所有實驗后的污物都要通過此通道集中后進行,將需要丟棄的物品集中、密封,統一進行處理;需要重復使用的實驗器材經過后,再經過洗滌。一般在各級CDC中會設置多間的P2實驗室,在布置時,可以相對集中,這樣可以使空調機房集中,減少風管的長度,減少工程的投資。
圖2是一個P2實驗室(負壓)的布局圖。人員經過換鞋、更衣進人實驗室區域。實驗好的人員經過脫衣、淋浴、更衣后離開試驗區。這些用過的實驗服放人密閉的容器統收一收集后集中處理,防止有可能被污染的實驗服帶出試驗區外。當天所用實驗器材通過傳遞柜在洗滌室(需要洗滌的器皿)和準備室分別按每個實驗的要求進行準備,并進行標識。所有使用過的實驗物品在每個實驗室中按:廢棄物、可利用物等進行分類包裝,并進行標識,經過傳遞窗和污物走道送人室。可重復利用的器皿需經過洗滌后暫存,廢棄物通過實驗區域的專用污物通道送人實驗區外設的專用廢棄物收集區,由環衛部門統一回收。
所有的實驗室都保持一定的負壓,用氣閘室和外界分開,但要求沒有P3的高,這樣可以減少空調相關的自控元件,減少工程費用。
4.3. 3 P3實驗室
按照《微生物和生物醫學生物安全通用準則》WS233-2002中的要求,其環境要求為十萬級或者一萬級,因此目前做出的設計,若采用十萬級或一萬級來設計,牽涉到的布置也各不相同,因此有必要作出比較明確的規定。本文建議如果在設置了負壓P2實驗室的情況下,P3應按照一萬級設計較好,理由如下:
由于設置了P2實驗室,在其范圍內的實驗和能分類但具體物質的性質未知或不太確定的的實驗都可在其中進行,在一定程度上減少了P3實驗室的使用頻率,也可相應減少P3實驗室的間數,節省運行費用和降低發生危險的頻率,也為明確P3實驗室的一萬級凈化級別打下基礎。
能提高實驗的準確性。雖然P3實驗室測定的物質并不需要都有較高的空氣凈化要求,但有些實驗由于環境的清潔程度會影響到實驗的數據準確性。如測定某些病毒的活性和進行病毒的分類等。
由于十萬級和一萬級的凈化要求不一樣,布局也有區別。從一般環境到十萬級只需經過一個氣閘過程即可。但一般環境到一萬級一般需要進過兩個氣閘。這對P3實驗室的實驗的安全性會更加有保障。一般布置是:中間一個準備間,旁邊圍著數間P3的操作室,從準備室到操作室的進人,人員一般需要進過氣閘,并將裝有實驗器材的密封容器,通過傳遞窗進出。建議在其中一間的物料出口設置雙扉柜,用作在P3實驗中較危險實驗廢棄物的預。
安全出口:實驗室布局中,根據安全消防規范要求,都要設置一定量的安全出口(逃生通道),目前常規設計都是按一般的安全門設置,在P3實驗區和一般環境只設有一道門,如果萬一發生危險,實驗人員從安全門逃生,這樣整個實驗室的負壓環境就會被破壞,造成有害物質的泄漏,造成較大的生物危害。所以在設置安全門時,應該再設置一個前室,在事故狀態下,人員將被污染的衣服在前室脫下后,通過安全門逃出室外,同時雙道門的設置也可以使實驗室保持一定時間的負壓,給事故處理留下一定的時間。
廢棄物的處理:在實驗室布置中,一般都是將廢棄物裝桶后,經過雙扉器后離開實驗區域。但對于需要以活體形式出來的實驗物,如活的菌種等,就不能通過這種形式離開,建議采用通過裝有液貯槽的具有連鎖裝置和紫外線的傳遞柜離開。
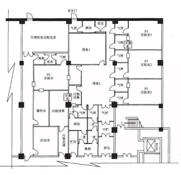
圖3是一個P3實驗室的布局圖。實驗室主要區域的凈化要求為一萬級,并設置了一個P2(負壓)實驗(預準備)室。在主實驗區設置有準備室,并有三間P3實驗室。
如果僅按照一萬級的人流進人通道,只需要兩間(見無菌室的布局),但由于需要設置淋浴間,故將更衣分為一更和二更。人員進人時,經過換鞋、一更、二更,并通過氣閘室進人實驗區,需要進人之實驗區的還要經過氣閘間。做完實驗的人員將外衣脫在二更(不是進去的二更)并通過淋浴及一更走出實驗區。二更換下的有可能污染的外衣包好后,送人污物暫存間,送人柜中進行,可以避免以前的布置之只考慮實驗物品的,而忽視了實驗服的情況。
在這個布置中由于有一些特殊要求,故實驗物和器材等都是通過P2實驗室進人P3實驗室的準備間,然后通過氣閘進人主實驗區,但無論怎樣,筆者建議應該將當天的實驗物品或一次實驗所需的實驗物品事先在準備間中進行準備,并根據實驗的性質和要求進行對物品進行分類,并進行標識。這樣做的好處是可以多一道管理程序,對物品進行再一次的核對,并可對比實驗前后物品數量,以免做完實驗后還有實驗物品在實驗室。實驗完畢后的物品集中,按分類打包,并標識好,在柜中進行。在布局中還留有一個較寬的通道,即圖上的拆包、氣閘通道,這是為了設備檢修用,在正常情況下是不開啟的,并是一個氣密性很好的門。在整 個 布 局中還著重考慮了消防。在其上端設置了逃生通道(安全門),在危急狀況,人也需要要經過更衣、淋浴、氣閘,這樣可以有效避免由于逃生而破壞實驗室的負壓,并將污染物帶出實驗區。這個逃生通道和實驗區不是一個仿火分區,以大限度保證實驗人員的安全。
4.4 其他
一些新的方法和材料的應用,也會在一定程度上實驗環境和影響實驗室的布局。
隔墻材質:在整個P3實驗室的污染區范圍(包括準備區)都應該利用鋼筋混凝土材料,以提高整個實驗區的耐火等級,盡可能達到一級耐火等級。內部隔斷的裝修材料用彩鋼板,所以在建造時需要對門(盡量不開窗,采用電視監控)和穿越墻體管道的留孔應仔細核對尺寸,盡量減少臨時穿孔的現象。在一般情況下采用的是彩鋼板門,好在其上面涂抹耐火材料,以使耐火時間延長。
管道穿越隔斷:P3所用的通風管道和公用工程管道都是從外部進人,需要穿越墻體。在火災情況下,如果火災的時間超過管道的耐火極限,有可能將管道燒毀,在墻體上留下洞眼,使實驗室的有害物質溢出。故在所有穿越墻體的管道處,都應該增加阻火圈,這樣在管道被燒毀的情況下,阻火圈可以受熱膨脹,對孔洞進行密封,此外,所有穿越隔墻的管道在一般區域的位置應設置止逆閥。
下水 :按 照規范,在P3實驗室和可能產生有害物質的區域都不應安裝下水裝置,所有在實驗過程中產生的廢水需要集中,裝人密閉的容器,并通過雙扉器后送至實驗室區域外。但在規范里也提出人員出來后宜設淋浴這一道程序,雖然是用“宜設”這個詞語,但在實際操作中都是按照就高的原則進行設計,固在一般情況下都設置淋浴室,但淋浴下水的處理是個很麻煩的事。如果P3設置在樓上,可以在比其較低的層樓設置一套全封閉自動系統,以解決這個問題。但如果是設置在一層或地下室就比較麻煩,為了處理這些水還需要挖深一層,所花成本較高。
新材料的應用:目前市場上出現了許多新材料可以參考應用。比如新型的耐火涂料可以大大提高彩鋼板的耐火等級,采用比較的移動式煙諾盡滅火器等,可以在一定程度上提高在危急狀況下的人員安全。
電話:0731-84015863
手機號碼:15802566125
地址:長沙經濟技術開發區新長海廣場3棟A座19樓